Портфолио согласованных перепланировок в СПб

128 успешно согласованных проектов перепланировки квартир и нежилых помещений
Реальные кейсы с фото до и после • Гарантия результата

Районы и области

Квартиры

87 проектов найдено

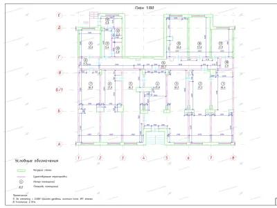
📌 Согласование перепланировки с расширением санузла и зонированием холла: пр. Космонавтов, 48, корп. 1, лит. А (Московский район СПб)
Адрес
пр. Космонавтов, дом 48, корп. 1, лит. А
Район
Московский район СПб

📌 Согласование перепланировки с расширением санузла и зонированием холла: пр. Космонавтов, 48, корп. 1, лит. А (Московский район СПб)

  • Что хотели изменить • Объединение и расширение санузла за счёт коридора; • Демонтаж перегородки между холлом и кухней с установкой раскладной двери; • Демонтаж встроенного шкафа; • Демонтаж перегородки между комнатой и коридором; • Устройство гардеробной; • Увеличение холла за счёт части комнаты; • Устройство шкафа за счёт части санузла; • Согласование с УК, МВК
  • Особенности проекта Дом 1965 года, кирпичный
  • Перекрытия — железобетонные
📌 Разработка и согласование проекта перепланировки: ул. Кораблестроителей, 29, корп. 4 (Василеостровский район СПб)
Адрес
Кораблестроителей 29, корпус 4
Район
Василеостровский район СПб

📌 Разработка и согласование проекта перепланировки: ул. Кораблестроителей, 29, корп. 4 (Василеостровский район СПб)

  • Что хотели изменить • Разработка проекта перепланировки; • Согласование проекта с управляющей компанией и Межведомственной комиссией (МВК)
  • Особенности проекта Дом 1975 года, панельный
  • Перекрытия — железобетонные
📌 Обследование и заключение о несущей способности: пр. Энгельса, 150, корп. 1 (Выборгский район СПб)
Адрес
пр. Энгельса, дом 150, корп. 1
Район
Выборгский район СПб

📌 Обследование и заключение о несущей способности: пр. Энгельса, 150, корп. 1 (Выборгский район СПб)

  • Что хотели изменить • Провели обследование конструктива здания • Составили заключение о несущей способности конструкций • 💬 «Решили не гадать, а сразу проверить, где можно делать проёмы, а где категорически нельзя» Особенности проекта кирпичный, 1995 года постройки Перекрытия: железобетонные Газоснабжение: отсутствует (по данным домового реестра) ⚠️ Важно: Обследование — обязательная часть при планировании проёмов, демонтажа или усиления Без заключения о состоянии конструкций невозможно согласовать перепланировку с затрагиванием несущих Что мы сделали • Проанализировали план и фактическое состояние конструкций • Выполнили инженерное обследование • Подготовили техническое заключение о возможности или невозможности вмешательства в несущие элементы Что в итоге Теперь у собственников есть официальный документ — база для безопасного проекта перепланировки
  • Можно разрабатывать проект, делать проёмы или усиления — зная, что и где допустимо
  • Планируете проём в несущей или сложную перепланировку