Портфолио согласованных перепланировок в СПб

128 успешно согласованных проектов перепланировки квартир и нежилых помещений
Реальные кейсы с фото до и после • Гарантия результата

Районы и области

Квартиры

87 проектов найдено

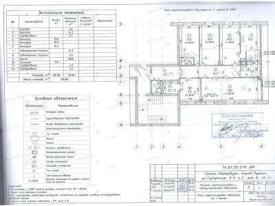
📌 Согласование перепланировки с гардеробной и совмещённым санузлом: ул. Гусарская, 9, корп. 2, лит. А (Пушкинский район СПб)
Адрес
Санкт-Петербург, Ул. Гусарская, д. 9, корп. 2, лит. А
Район
Пушкинский район СПб

📌 Согласование перепланировки с гардеробной и совмещённым санузлом: ул. Гусарская, 9, корп. 2, лит. А (Пушкинский район СПб)

  • Что хотели изменить Клиент хотел организовать пространство по-своему, но с гарантией законности: • Согласовать устройство совмещённого санузла • Увеличить кухню за счёт части комнаты • Устроить гардеробную • Перенести дверной проём в санузел
  • Он понимал: любые изменения с мокрыми зонами и перегородками без проекта — это риск
  • Поэтому и запрос был: оформить по закону, с финалом в ЕГРН
📌 Ввод в эксплуатацию после перепланировки: ул. Чапаева, 11/4 (Петроградский район СПб)
Адрес
Ул. Чапаева, дом 11/4
Район
Петроградский район СПб

📌 Ввод в эксплуатацию после перепланировки: ул. Чапаева, 11/4 (Петроградский район СПб)

  • Что хотели изменить Клиент обратился за узакониванием уже выполненной перепланировки
  • Мы взяли на себя: • Проведение переобмера квартиры после выполненных работ; • Подготовку полного комплекта документов для ввода в эксплуатацию
  • Основная задача — оформить изменения официально, без переделок и штрафов, несмотря на исторический контекст объекта
📌 Согласование разделения квартиры на две: Морская набережная, 25, корп. 1 (Василеостровский район СПб)
Адрес
Морская набережная, дом 25, к. 1
Район
Василеостровский район СПб

📌 Согласование разделения квартиры на две: Морская набережная, 25, корп. 1 (Василеостровский район СПб)

  • Что хотели изменить Клиент заранее понимал: без проекта, расчётов и правильного подключения инженерии разделение квартиры невозможно
  • Поэтому заказал услугу «с нуля» — от анализа до утверждения в госреестре
  • Согласование перепланировки по разделению квартиры на две; • Получение технических условий по подключению инженерных коммуникаций; • Согласование с УК, МВК, ГАСН, ОНД