Портфолио согласованных перепланировок в СПб

128 успешно согласованных проектов перепланировки квартир и нежилых помещений
Реальные кейсы с фото до и после • Гарантия результата

Районы и области

Нежилые помещения

41 проект найдено

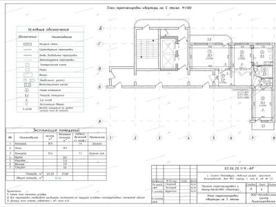
📌 Перепланировка с гардеробной и новыми проёмами: ул. Кораблестроителей, 32, корп. 1, лит. А (Василеостровский район СПб)
Адрес
ул. Кораблестроителей, дом 32, корп. 1, лит. А
Район
Василеостровский район СПб

📌 Перепланировка с гардеробной и новыми проёмами: ул. Кораблестроителей, 32, корп. 1, лит. А (Василеостровский район СПб)

  • Что хотели изменить • Устроить проём между гостиной и коридором • Устроить гардеробную на части коридора • Сделать дверной проём между кухней и гостиной с установкой распашной двери • 💬 «Проект хотели простой, без лишнего — но чтобы потом спокойно продавать или сдавать» Особенности проекта монолитный, 2003 года постройки Перекрытия: железобетонные Газоснабжение: не указано, вероятно отсутствует (типично для этого ЖК) ⚠️ Особенности: Проёмы → требовали проектного оформления и фиксации в ПИБ Гардеробная → изменение площади коридора, влияет на техплан Что мы сделали • Провели аудит планировки • Подготовили проект перепланировки Согласовали с: • УК • МВК Василеостровского района • Получили акт приёмки • Зарегистрировали изменения в ЕГРН Что в итоге Теперь квартира — открытая, светлая, с продуманной логикой движения
  • И всё это — официально оформлено
  • Готово к жизни, сделкам и спокойствию
📌 Переобмер и ввод в эксплуатацию после перепланировки: пр. Большевиков, 9, корп. 3, лит. Э (Невский район СПб)
Адрес
пр. Большевиков, дом 9, корп. 3, лит. Э
Район
Невский район СПб

📌 Переобмер и ввод в эксплуатацию после перепланировки: пр. Большевиков, 9, корп. 3, лит. Э (Невский район СПб)

  • Что хотели изменить Цель — привести техпаспорт и ЕГРН в соответствие с фактической планировкой: • Провели переобмер квартиры после перепланировки • Подготовили пакет документов для ввода объекта в эксплуатацию • 💬 «Сделали ремонт, всё красиво
  • Осталось — оформить официально
  • Не хотелось, чтобы подвисло» Особенности проекта Дом: панельный, серия 1‑ЛГ‑504Д‑10, 1972 года постройки Перекрытия: железобетонные Газоснабжение: центральное ⚠️ Важно: Дом с газом → изменения должны быть корректно отражены в проекте Серия 504Д‑10 → типовые ограничения и нормы Что мы сделали • Провели актуальный обмер квартиры • Подготовили комплект технической документации • Сопровождали подачу на ввод в эксплуатацию • Внесли сведения о перепланировке в ЕГРН Что в итоге по плану, по факту, по реестру
📌 Согласование перепланировки с расширением гардеробной и смещением проёмов: пр. Обуховской Обороны, 138, корп. 2, лит. А (Невский район СПб)
Адрес
пр. Обуховской обороны, дом 138, корп. 2, лит. А
Район
Невский район СПб

📌 Согласование перепланировки с расширением гардеробной и смещением проёмов: пр. Обуховской Обороны, 138, корп. 2, лит. А (Невский район СПб)

  • Что хотели изменить • Увеличение гардеробной за счёт площади комнаты; • Смещение дверного проёма между коридором и комнатой; • Смещение дверного проёма ванной
  • Особенности проекта Дом 2012 года, кирпично-монолитный
  • Перекрытия — железобетонные