Портфолио согласованных перепланировок в СПб

128 успешно согласованных проектов перепланировки квартир и нежилых помещений
Реальные кейсы с фото до и после • Гарантия результата

Районы и области

Квартиры

87 проектов найдено

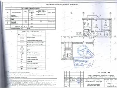
Перепланировка с объединением санузлов и демонтажом двери: улица Бутлерова, дом 32, литера А
Адрес
ул. Бутлерова, дом 32, лит. А
Район
Калининский район СПб

Перепланировка с объединением санузлов и демонтажом двери: улица Бутлерова, дом 32, литера А

  • Что хотели изменить • Собственники обратились за полнымобъединение санузла • демонтаж перегородки между комнатой и коридором • устройство гардеробной на площади комнаты • замена входной деревянной двери на стальную
  • Всё это нужно было оформить официально, чтобы не возникло проблем с УК, сделками или при перепланировке в будущем
  • Особенности проекта Дом 1964 года постройки, кирпичный, с железобетонными перекрытиями и центральным газом
Как узаконили уже сделанную перепланировку в доме 2018 года: г. Мурино, Воронцовский бульвар, дом 17
Адрес
г. Мурино, Воронцовский бульвар, дом 17
Район
Ленинградская область

Как узаконили уже сделанную перепланировку в доме 2018 года: г. Мурино, Воронцовский бульвар, дом 17

  • Что хотели изменить • Обращение былодаже если в доме нет газа, любые изменения — особенно с мокрыми зонами или стенами — нужно оформлять официально
  • Их цель — получить проект, с которым потом не будет проблем при согласовании или регистрации в ЕГРН
  • Клиенты обратились после завершения всех работ, когдапровести переобмер квартиры по фактической планировке • подготовить комплект документов для ввода объекта в эксплуатацию
Проект перепланировки в новостройке без газа: улица Союза Печатников, дом 13-15, литера А
Адрес
ул. Союза Печатников, дом 13-15, лит. А
Район
Адмиралтейский район СПб

Проект перепланировки в новостройке без газа: улица Союза Печатников, дом 13-15, литера А

  • Что хотели изменить • Клиентыувеличение площади коридора за счёт кладовой • демонтаж перегородки между кухней и коридором с установкой стеклянных распашных дверей • изменение расстановки сантехнического оборудования с подключением к существующим стоякам горячей, холодной воды и канализации
  • Главная цель — сделать пространство современным, но при этом строго по закону, чтобы не было рисков при сделках или проверках
  • Особенности проекта Дом 1875 года постройки, кирпичный, с центральным газом и смешанными перекрытиями — расположен в историческом центре Санкт-Петербурга (Адмиралтейскийособого подхода к мокрым зонам и инженерным коммуникациям; соблюдения норм по сохранению архитектурных и технических решений; проектной документации, одобряемой не только УК, но и городскими комиссиями