Портфолио согласованных перепланировок в СПб

128 успешно согласованных проектов перепланировки квартир и нежилых помещений
Реальные кейсы с фото до и после • Гарантия результата

Районы и области

Квартиры

87 проектов найдено

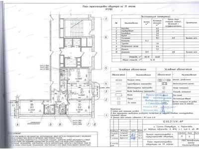
Перепланировка в доме 1875 года с демонтажом перегородки и новой сантехникой: ул. Союза Печатников, 13–15 (Адмиралтейский район СПб)
Адрес
Санкт-Петербург, Ул.Заречная, д. 17, стр.1
Район
Адмиралтейский район СПб

Перепланировка в доме 1875 года с демонтажом перегородки и новой сантехникой: ул. Союза Печатников, 13–15 (Адмиралтейский район СПб)

  • Что хотели изменить Клиент заранее пришёл с задачей: • сместить дверной проём на кухне • объединить санузел с увеличением за счёт площади коридора • расставить сантехническое оборудование с подключением к существующим стоякам горячей, холодной воды и канализации
  • Он понимал, что даже такие на первый взгляд «незначительные» изменения требуют официального согласования и проектной документации
  • Особенности проекта Дом 2019 года, монолитный, с железобетонными перекрытиями и центральным газом (ЖК «Шуваловский дуэт», мкр
Перепланировка с объединением санузла и переносом проёма: пос. Парголово, ул. Заречная, 17, стр. 1 (Выборгский район СПб)
Адрес
Ул. Федора Абрамова, дом 16, корп. 1
Район
Выборгский район СПб

Перепланировка с объединением санузла и переносом проёма: пос. Парголово, ул. Заречная, 17, стр. 1 (Выборгский район СПб)

  • Что хотели изменить Собственник заранее обратился с запросом на официальное оформление: • организация кладовой на площади коридора • демонтаж перегородки между кухней и комнатой • смещение дверного проёма в комнате • устройство встроенного шкафа на площади коридора
  • Цель — улучшить планировку, но при этом остаться в правовом поле и не нарушить ни один норматив
  • Особенности проекта Дом 2014 года постройки, кирпичный, с железобетонными перекрытиями, расположен в пос
Перепланировка с кладовой и встроенным шкафом: ул. Фёдора Абрамова, 16, корп. 1 (пос. Парголово, Выборгский район СПб)
Адрес
ул. Сантьяго-де-Куба, дом 4, корпус 3, лит. А
Район
Ленинградская область

Перепланировка с кладовой и встроенным шкафом: ул. Фёдора Абрамова, 16, корп. 1 (пос. Парголово, Выборгский район СПб)

  • Что хотели изменить Клиенты заранее обратились за согласованием перепланировки квартиры в Санкт-Петербурге “под ключ”
  • Что планировалось: • увеличение площади совмещённого санузла за счёт части коридора • организация кухни-гостиной • изменение расстановки сантехнического оборудования
  • Цель — получить современную и удобную планировку без риска отказа со стороны УК или МВК, и возможных штрафов за самовольную перепланировку и переустройство