Портфолио согласованных перепланировок в СПб

128 успешно согласованных проектов перепланировки квартир и нежилых помещений
Реальные кейсы с фото до и после • Гарантия результата

Районы и области

Квартиры

87 проектов найдено

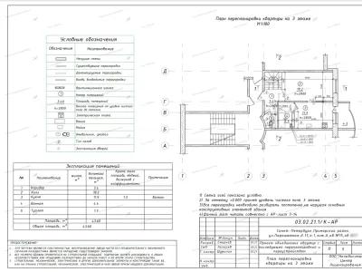
Проём в несущей и расширение санузла: ул. Тельмана, 48, к.4 (Невский район, Санкт-Петербург)
Адрес
Санкт-Петербург, Малая Бухарестская улица, дом 12, строение 1
Район
Фрунзенский район СПб

Проём в несущей и расширение санузла: ул. Тельмана, 48, к.4 (Невский район, Санкт-Петербург)

  • Что хотели изменить Собственник планировал: • устроить встроенный шкаф на площади комнаты с установкой складной двери • перенести дверные проёмы в кладовой и комнате • разделить совмещённый санузел на ванную и туалет • изменить расстановку сантехнического оборудования с подключением к существующим стоякам горячей, холодной воды и канализации
  • Он заранее понимал: любые вмешательства в планировку — особенно в зоне санузла — требуют проекта, техусловий и прохождения согласований
  • Обратился за решением «под ключ», чтобы избежать переделок, штрафов и отказов
Перепланировка со встроенным шкафом и разделением санузла: Малая Бухарестская, 12, стр. 1 (Фрунзенский район СПб)
Адрес
Санкт-Петербург, Ул. Парашютная, д. 17, к. 1, лит. А
Район
Фрунзенский район СПб

Перепланировка со встроенным шкафом и разделением санузла: Малая Бухарестская, 12, стр. 1 (Фрунзенский район СПб)

  • Что хотели изменить Клиент только планировал ремонт
  • Чётко понимал, что любой перенос стен, проёмов, стояков или сантехники — это уже перепланировка и переустройство
  • А значит — нужен проект
Проект перепланировки под ключ: ул. Парашютная, 17/1 (Приморский район СПб)
Адрес
Приморский пр., 46, стр. 1 (Приморский район СПб)
Район
Приморский район СПб

Проект перепланировки под ключ: ул. Парашютная, 17/1 (Приморский район СПб)

  • Что хотели изменить Клиенты обратились заранее — чтобы сразу сделать правильно: • заложить дверной проём между кухней и коридором • пробить новый проём между комнатой и кухней • увеличить совмещённый санузел за счёт площади коридора
  • И — да, согласовать официально перепланировку квартиры в Приморском районе Санкт-Петербурга: с проектом, актом и регистрацией в ЕГРН
  • Особенности проекта Дом 2017 года, монолитный, с железобетонными перекрытиями